>> A propos de nous
Chercheur en transition écologique et énergétique, j’ai à cœur de construire et habiter une maison la plus sobre possible dans son empreinte écologique et dans l’esprit de créer du lien, apprendre et construire en autonomie.
La première étape est réalisée : fondations et raccordements réseaux. L’ossature bois est fabriquée en ce moment par une coopérative que j’ai rencontrée via un chantier participatif non loin. Assemblage de la maison sur la terrain dernière semaine de juin.
Prochaines étapes : couverture, zinguerie, pose des ouvertures, isolation.
Viendront d’autres étapes pour le second œuvre, le jardin… Ce sera l’occasion d’autres chantiers…
>> Notre lieu
Le terrain de la future maison est situé dans un petit village très calme à 2km de la mer au Cap Sizun. La nature et la côte autour sont magnifiques. Avec 2000m2 de terrain, j’aurais l’espace pour planter des arbres, cultiver un potager. J’ai déjà créé des liens avec mes trois plus proches voisins. Ils sont tous dans l’autoconstruction et on a eu l’occasion de rendre de bons services. Un copain de Douarnenez a un petit terrain agricole sur lequel il plante des fruitiers. A terme, j’espère pouvoir faire de cette maison, un endroit de partage et d’échanges. Beaucoup de gens sont dans cette optique d’ouverture et de réflexion dans les alentours.
>> Notre chantier
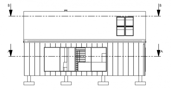
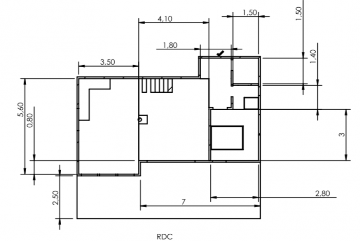
Dans l’idée d’obtenir un habitat petit et léger, 60m2 au sol, j’ai choisi des fondations réversibles sur plot en béton qui correspondent à mon budget et ont une empreinte minimale sur le terrain. Le travail a été fait à quatre au maximum de l'effort, la base des plots, puis à deux pour les coffrages et piliers. J'ai fini la mise à niveau des plots avec un laser et une disqueuse, disques diamant.
Pour les raccordement, j'ai appris un peu la mini-pelleteuse, creuser mes tranchées, placer les câbles gainés et refermer sur deux jours.
Pour la suite, dans l’ordre
Fin juin : assemblage ossature bois,
Début juillet : couverture avec le charpentier et un cordiste.
Fin juillet : pose des menuiseries
Août : isolation
Août : enduit chaux
J’espère qu’en septembre la maison sera hors d’eau/ hors d’air.
Ensuite, seconde oeuvre, avec notamment :
- eau,
- électricité
- cloisons intérieures
- sols
- cuisine
- salle de bain
Le début des travaux m'a confirmé que j'aime ça. Les fondations étaient assez physiques. J’ai hâte de voir la partie bois de la maison assemblée ! Le temps devrait être continuer d'être avec nous.
>> Se rendre sur mon chantier
J’ai un petit camion donc je peux aller chercher les personnes qui n’ont pas de véhicules. L’accès est très facile, on peut se garer à 50m ou sur le terrain pour celles et ceux qui sont en camion habitable.
Chercheur en transition écologique et énergétique, j’ai à cœur de construire et habiter une maison la plus sobre possible dans son empreinte écologique et dans l’esprit de créer du lien, apprendre et construire en autonomie.
La première étape est réalisée : fondations et raccordements réseaux. L’ossature bois est fabriquée en ce moment par une coopérative que j’ai rencontrée via un chantier participatif non loin. Assemblage de la maison sur la terrain dernière semaine de juin.
Prochaines étapes : couverture, zinguerie, pose des ouvertures, isolation.
Viendront d’autres étapes pour le second œuvre, le jardin… Ce sera l’occasion d’autres chantiers…
>> Notre lieu
Le terrain de la future maison est situé dans un petit village très calme à 2km de la mer au Cap Sizun. La nature et la côte autour sont magnifiques. Avec 2000m2 de terrain, j’aurais l’espace pour planter des arbres, cultiver un potager. J’ai déjà créé des liens avec mes trois plus proches voisins. Ils sont tous dans l’autoconstruction et on a eu l’occasion de rendre de bons services. Un copain de Douarnenez a un petit terrain agricole sur lequel il plante des fruitiers. A terme, j’espère pouvoir faire de cette maison, un endroit de partage et d’échanges. Beaucoup de gens sont dans cette optique d’ouverture et de réflexion dans les alentours.
>> Notre chantier
Dans l’idée d’obtenir un habitat petit et léger, 60m2 au sol, j’ai choisi des fondations réversibles sur plot en béton qui correspondent à mon budget et ont une empreinte minimale sur le terrain. Le travail a été fait à quatre au maximum de l'effort, la base des plots, puis à deux pour les coffrages et piliers. J'ai fini la mise à niveau des plots avec un laser et une disqueuse, disques diamant.
Pour les raccordement, j'ai appris un peu la mini-pelleteuse, creuser mes tranchées, placer les câbles gainés et refermer sur deux jours.
Pour la suite, dans l’ordre
Fin juin : assemblage ossature bois,
Début juillet : couverture avec le charpentier et un cordiste.
Fin juillet : pose des menuiseries
Août : isolation
Août : enduit chaux
J’espère qu’en septembre la maison sera hors d’eau/ hors d’air.
Ensuite, seconde oeuvre, avec notamment :
- eau,
- électricité
- cloisons intérieures
- sols
- cuisine
- salle de bain
Le début des travaux m'a confirmé que j'aime ça. Les fondations étaient assez physiques. J’ai hâte de voir la partie bois de la maison assemblée ! Le temps devrait être continuer d'être avec nous.
>> Se rendre sur mon chantier
J’ai un petit camion donc je peux aller chercher les personnes qui n’ont pas de véhicules. L’accès est très facile, on peut se garer à 50m ou sur le terrain pour celles et ceux qui sont en camion habitable.















A propos de transition, énergétique notamment, et comme vous êtes familier du sujet, vous devez avoir lu le livre de JB Fressoz "Sans transition". J'aimerais savoir ce qu'un...Afficher la suite Bravo Jean Marie pour ce projet, beau par sa sobriété et sa simplicité... même si on a des surprise parfois.
A propos de transition, énergétique notamment, et comme vous êtes familier du sujet, vous devez avoir lu le livre de JB Fressoz "Sans transition". J'aimerais savoir ce qu'un spécialiste du sujet en pense, même si ce sont plutôt des faits qui sont relatés que des opinions, et comment vous voyez l'avenir dans ce domaine.
Merci et bonne continuation.