Rénovation d'une fermette

Gestion du projet > Conception

#REF001212  -  Souvigné, Indre-et-Loire (37)  -  2022

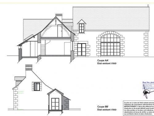
Relevés de l'existant:

Anciens corps de ferme: fermette et grange reliés par une galerie créée dans les années 90'

Projet de rénovation écologique et énergétique de la fermette pour la proposer à la location longue durée

Cette référence est proposée par :

Sandrine J.

Architecte

Neuillé-Pont-Pierre, Indre-et-Loire (37)

Découvrez les autres références de ce professionnel

Extension contemporaine

Extension contemporaine

Beaumont-Louestault, Indre-et-Loire  -  0
Véranda

Véranda

Sonzay, Indre-et-Loire (37)  -  0
Création d'un hangar bois transformable

Création d'un hangar bois transformable

Fondettes, Indre-et-Loire (37)  -  0