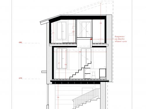
Accompagnement pour la transformation d'un immeuble de commerce en brique du XVIIIe pour la création d'un logement pour une famille. J'ai accompagné le projet, des relevés de l'existant, aux plans d’exécution, ainsi que du conseil pour les parties réalisées en auto-rénovation. Ce projet a été conçu sobrement, pour des travaux facilités en centre-ville ancien, et aussi des coûts optimisés. C'est un des premiers projet que j'ai suivi après mon diplôme, et qui est en cours de réalisation actuellement. Ayant déménagé je ne fais pas le suivi des travaux.
Rénovation d'un immeuble de commerce ancien
Gestion du projet > Conception
#REF001422 - Villeneuve-sur-Lot, Lot-et-Garonne (47) - 2021
Découvrez les autres références de ce professionnel

Conception et accompagnement à la construction de La Maison Nomade 35m2
Lanvallay, Côtes-d'Armor (22) - 2024

Étude structurelle, architecturale et économique d'une extension
Saint-Jacques-de-la-Lande, Ille-et-Vilaine - 2024