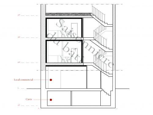
Accompagnement et projet de la rénovation d'un immeuble du XIXe siècle en centre-ville. Le projet vise à recréer du logement locatif de qualité, thermiquement performant et avec des matériaux biosourcés, en limitant les travaux et en conservant au maximum l'existant pour un chantier sobre et pratique en centre-ville ancien. J'ai réalisé les relevé, des plans d'avant projet afin de faire des choix, et les plans d’exécution pour les artisans et les dossiers de demande de permis de construire. Ayant déménagé je ne suis pas les travaux de ce projet qui est en cours.
Rénovation d'un immeuble ancien
Gestion du projet > Conception
#REF001424 - Villeneuve-sur-Lot, Lot-et-Garonne (47) - 2021
Découvrez les autres références de ce professionnel

Conception et accompagnement à la construction de La Maison Nomade 35m2
Lanvallay, Côtes-d'Armor (22) - 2024

Étude structurelle, architecturale et économique d'une extension
Saint-Jacques-de-la-Lande, Ille-et-Vilaine - 2024