Pieuvre électrique prête à poser dans une belle villa en Martinique

Second oeuvre > Électricité

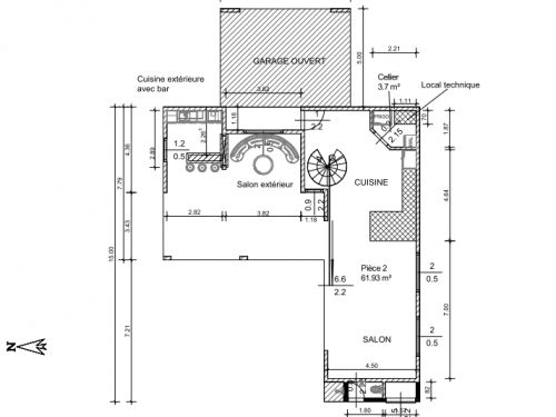
#REF000288  -  Sainte-Luce, Le Marin  -  2018

Un deuxième projet antillais avec une architecture très moderne et entièrement ouverte sur l’extérieure.

Le client a pris contact avec nous suite à la recommandation d’un de ses amis qui depuis a réalisé son installation avec notre solution.

Il s’agissait de prévoir et livrer toute l’installation électrique et domotique du logement en Martinique. La maison a été entièrement doublé en placo ce qui a nettement facilité la pose des pieuvres dans les faux plafonds et le passage des gaines dans les murs. Notre bureau d’étude a su répondre aux besoins de clients et aux contraintes de passage.  

Nous avons fourni toute l’installation électrique de la maison sous forme de pieuvres prêtes à poser domotisée, prévu les éclairages et les prises extérieures, la VMC et même les spots pour la maison. La caisse qui a servi au transport pesait plus de 600 kg et a impressionnée le transitaire qui est venu la chercher à l’entrepôt. 

Après un trajet en bateau de 2 semaines, le client a reçu son installation en parfait état, et a été étonné d’y trouver absolument tout le matériel électrique nécessaire à réaliser son chantier – des pieuvres équipée de connecteurs rapides, une GTL déjà câblée et prête à être vissé au mur, tous les appareillages, les boitiers d’encastrements, les plans plastifiés et même de câble électrique en rab pour chaîner ses spots.

Cette référence est proposée par :

Radoslava G.

Le spécialiste de l'électricité prête-à-poser

Theizé, Rhône (69)

Découvrez les autres références de ce professionnel