Descente de charge Maison D

Gestion du projet > Bureau d'études

#REF000544  -  Fresnicourt-le-Dolmen, Pas-de-Calais  -  2019

Projet maison R+1 en construction greb

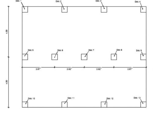
Descente de charges suivant les plans fournis par le client afin de dimensionner les fondations.


Etude de vent, et descente de charge :

- toiture 2 pans 48° en bois

- plancher bois

- mur système greb

- dalle bois.



Cette référence est proposée par :

Racine Bois

Bureau d'étude structure bois

Saint-Hilaire-en-Morvan, Nièvre (58)

Découvrez les autres références de ce professionnel

Encadrement chantier internationnale V

Encadrement chantier internationnale V

Varzy, Nièvre (58)  -  2024
Projet BV

Projet BV

Dijon, Côte-d'Or (21)  -  2023
Projet J

Projet J

Pau, Pyrénées-Atlantiques (64)  -  2022