Pont Kerran

Gestion du projet > Conception

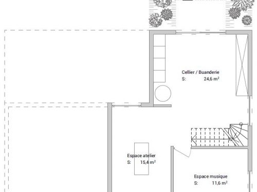
#REF000936  -  Languidic, Morbihan (56)  -  2021

État : esquisse en cours

Surface Habitable : ~130 m²

Structure : ossature bois / pin Douglas
Isolation : à définir (paille / ouate / laines)
Bardage : Douglas à claire-voie

Couverture : zinc à joint-debout

Cette référence est proposée par :

Atelier N.

Architecture Bioclimatique de l'Habitat

Saint-Nolff, Morbihan (56)

Découvrez les autres références de ce professionnel

Le Nid

Le Nid

Lantic, Côtes-d'Armor (22)  -  2020
Lann Kergunan

Lann Kergunan

Bignan, Morbihan (56)  -  2021
An Dinaou Bihan

An Dinaou Bihan

Brech, Morbihan (56)  -  2021