Réaménagement d'une maison de Village

Gestion du projet > Conception

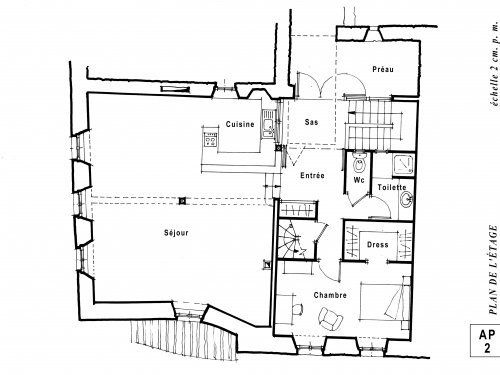
#REF000039  -  Goudet, Haute-Loire (43)  -  2007

Le propriétaire a acquis cette maison pour y aménager un logement dans les deux étages supérieurs, le rez de chaussée restant occupée par l'ancienne tenancière du café.

Le premier étage est accessible depuis le bas par une remise donnant sur la rue latérale, mais aussi de plain pied par l'arrière qui donnait accès à la grange.

La principale difficulté était de faire entrer de l'éclairage naturel au cœur de la maison qui présente une "épaisseur" importante. Cela a été possible par la création d'une verrière intégrée à la toiture couvrant l'entrée de l'ancienne grange.

Dans ce projet, mon intervention à consisté, dans un premier temps à la réalisation du relevé du bâtiment et l'établissement des plans d'état des lieux, puis à élaborer un plan d'aménagement validé par le propriétaire.

Mon rôle a aussi été de mener une concertation avec l'Architecte des Bâtiments de France (ABF), ce bâtiment étant situé dans le périmètre de protection d'un édifice classé Monument Historique.

J'ai ensuite établi les pièces graphiques nécessaires à la composition du dossier de demande de permis de construire.

Travaux réalisés en partie en autoconstruction par le propriétaire.

Cette référence est proposée par :

MARC D.

Architecte accompagnateur autoconstruction

Châteauvilain, Isère (38)

Découvrez les autres références de ce professionnel

Projet inspiré Earthship sur maison ancienne

Projet inspiré Earthship sur maison ancienne

L'Isle-d'Abeau, Isère (38)  -  2023
Projet d'extension d'un Gite

Projet d'extension d'un Gite

Ternuay-Melay-et-Saint-Hilaire, Haute-Saône (70)  -  0